Log in
  1. Home
  2. Apartments
  3. København
  4. 4 rooms
  5. København S
Floor plan
Yesterday
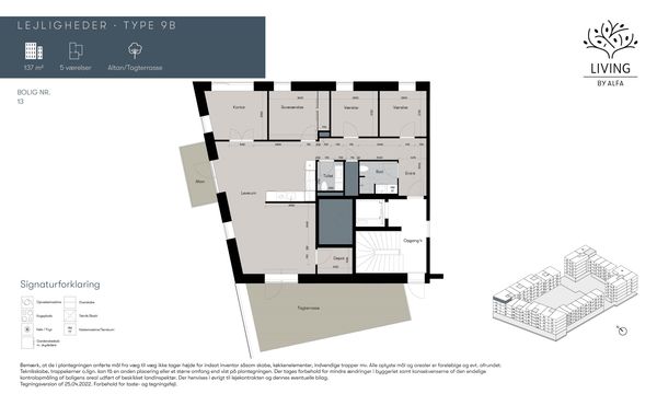
4 room apartment of 130 m²
Poul Hartlings Gade, 2300 København, København S - Ground floor
Monthly net rent
21.450
kr
21.450 kr.
Utilities
1.690 kr.
Move-in price
108.940 kr.

Available from
1 June 2026
Rental period
Unlimited
Do you need a loan?

Yesterday

4 værelses lejlighed på Poul Hartlings Gade i København S udlejes

Drømmer du om at bo moderne, rummeligt og med vandet som nabo? Nu udbydes en skøn 4-værelses lejebolig i de eftertragtede Bassinhuse på Islands Brygge – et af Københavns mest attraktive og levende kvarterer. Boligen byder på en gennemtænkt planløsning med tre gode soveværelser og et stort, lyst opholdsrum i åben forbindelse med køkkenet. De store vinduespartier sikrer et fantastisk lysindfald og skaber en luftig og indbydende atmosfære. Køkkenet fremstår stilrent med kvalitetsmaterialer og alt i moderne hårde hvidevarer. Lejligheden har desuden: * Rummeligt badeværelse med separat bruseniche * Praktisk entré med gode opbevaringsmuligheder * Privat altan/terrasse med vandkig og hyggeligt gårdmiljø * Elevator i ejendommen * Mulighed for parkering i privat parkeringskælder. Bassinhusene er kendt for deres moderne arkitektur, attraktive beliggenhed og nærhed til både byliv og natur. Du bor få skridt fra havnebadet, grønne områder, caféer og indkøb – og samtidig kun få minutter fra centrum og metro. Her får du den perfekte kombination af byliv, komfort og ro ved vandet. Kontakt os allerede i dag for en fremvisning – denne bolig skal opleves! Der vil i forbindelse med anmodning om leje af boligen, blive fortaget en kreditvurdering af kommende lejer ved anvendelse af CPR-nummer. Det er ikke tilladt at være registreret i RKI, hvis man vil leje en bolig. OBS! Billederne er ikke fra den specifikke bolig.

About property

Property type
Apartment
Size
130 m²
Rooms
4
Floor
Ground floor
Furnished
No
Shareable
Yes
Pets allowed
Yes
Elevator
Yes
Senior friendly
No
Students only
No
Balcony
Yes
Parking
Yes
Dishwasher
Yes
Washing machine
Yes
Electric charging station
Yes
Dryer
Yes
Energy rating

About rental

Rental period
Unlimited
Available from
1 June 2026
Monthly net rent
21.450 kr.
Utilities
1.690 kr.
Deposit
64.350 kr.
Prepaid rent
21.450 kr.
Move-in price
108.940 kr.
Do you need a loan?
Creation Date
24/02/2026
Listing-id
5602367
Search Agent
Your search:
København, København S, Apartments
Send me alerts based on these search criteria - for free!
Landlord
Approved by BoligPortal
More than 1000 ads
Last active: 1 day ago
Profile created: 17 years ago
Monthly net rent
21.450
kr
21.450 kr.
Utilities
1.690 kr.
Move-in price
108.940 kr.

Available from
1 June 2026
Rental period
Unlimited
Search Agent
Your search:
København, København S, Apartments
Send me alerts based on these search criteria - for free!
Landlord
Approved by BoligPortal
More than 1000 ads
Last active: 1 day ago
Profile created: 17 years ago
Monthly net rent
21.450
kr

Other results in København

Free contact
4 rm. apartment of 132 m²
København S, Else Alfelts Vej
21.500 kr.14 October

Popular search terms

All in Apartments
GET APP
Google Play
BOLIGPORTALAbout usBlog PressData and Privacy PolicyCookie policyPayment policyWhistleblower programCareerBoligmanagerData Insights
SUPPORTRent out a roomMoving inspectionSublease contractSublet a rental propertyCustomer supportTerms and conditions
SOCIAL MEDIA
GET APP
Google Play

Dansk