Log ind
  1. Hjem
  2. Lejligheder
  3. København
  4. 5 værelses
  5. Frederiksberg
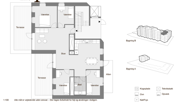
Plantegning
4 dage siden
5 værelses lejlighed på 138 m²
Dirch Passers Allé, 2000 København, Frederiksberg - 2. sal
Månedlig leje
27.000
kr
27.000 kr.
Månedlig aconto
1.190 kr.
Indflytningspris
112.790 kr.

Ledig fra
Snarest muligt
Lejeperiode
Ubegrænset
Har du brug for et lån?

4 dage siden

Lækkert og nyt - og 2 badevær.

Denne skønne 5 vær, som har 2 badeværelser, ligger i nybyggeriet, Livas Have, på Frederiksberg. Der er endvidere kort afstand til både metro, tog og bus, indkøb, caféer samt skoler/institutioner. Livas Have er et ambitiøst byggeri, tegnet af arkitekterne fra Holscher Nordberg, med høje krav til gennemtænkt arkitektur udført i smukke kvalitetsmaterialer. Denne lejlighed ligger på 2. sal, og har en skøn altan. Se placering af lejligheden på hjemmesiden om Livas Have. Lejligheden har et lækkert lyst køkken med alle hårde hvidevarer i åben forbindelse med stuen. Fra stuen er der altan mod syd og ud mod Dirch Passers Alle. På bagsiden af køkkenet har lejligheden en lang række skabe, så der er rigeligt med opbevaringsplads. To badeværelser - det ene i forbindelse med soveværelset og med vask/tør. Begge har bruseniche. 4 gode værelser med skabe. Kælderrum medfølger. Overalt er lagt smukke lyse trægulve og lejligheden har selvfølgelig gulvvarme. Der kan gives tilladelse til ét husdyr efter aftale med udlejer. P-plads kan lejes i p-kælderen lige under ejendommen for 795 kr/md. Her findes også pladser med el-ladestandere. Kontakt os venligst for mere info og aftale om en fremvisning. OBS! Fotos er fra en lignende lejlighed samt tidl. prøvebolig

Detaljer om bolig

Boligtype
Lejlighed
Størrelse
138 m²
Værelser
5
Etage
2.
Møbleret
Nej
Delevenlig
Nej
Husdyr tilladt
Ja
Elevator
Ja
Seniorvenlig
Ja
Kun for studerende
Nej
Altan/terrasse
Ja
Parkering
Ja
Opvaskemaskine
Ja
Vaskemaskine
Ja
Ladestander
Ja
Tørretumbler
Ja
Energimærke

Detaljer om udlejning

Lejeperiode
Ubegrænset
Ledig fra
Snarest muligt
Månedlig leje
27.000 kr.
Aconto
1.190 kr.
Depositum
57.600 kr.
Forudbetalt husleje
27.000 kr.
Indflytningspris
112.790 kr.
Har du brug for et lån?
Oprettelsesdato
7.1.2026
Sagsnr.
5585842
BoligAgent
Din søgning:
København, Frederiksberg, Lejligheder
Du modtager en e-mail, når der kommer nye boliger, som matcher din søgning - helt gratis!
Om udlejeren
Valideret af BoligPortal
Mere end 1000 annoncer
Sidst aktiv: 2 dage siden
Oprettet: 17 år siden
Månedlig leje
27.000
kr
27.000 kr.
Månedlig aconto
1.190 kr.
Indflytningspris
112.790 kr.

Ledig fra
Snarest muligt
Lejeperiode
Ubegrænset
BoligAgent
Din søgning:
København, Frederiksberg, Lejligheder
Du modtager en e-mail, når der kommer nye boliger, som matcher din søgning - helt gratis!
Om udlejeren
Valideret af BoligPortal
Mere end 1000 annoncer
Sidst aktiv: 2 dage siden
Oprettet: 17 år siden
Månedlig leje
27.000
kr

Andre boliger i København

5 vær. lejlighed på 147 m²
København S, Lergravsvej
26.000 kr.6 dage siden

Populære søgninger

Alle i Lejligheder
HENT APP
Google Play
BOLIGPORTALOm BoligPortalBlog PresseData- og privatlivspolitikCookiesHandelsbetingelserWhistleblowerordningKarriereBoligmanagerData Insights
HJÆLPUdlej værelseFlyttesynFremlejekontraktFremlej lejeboligKundeserviceVilkår
SOCIALE MEDIER
HENT APP
Google Play

English