Log ind
  1. Hjem
  2. Lejligheder
  3. København
  4. 3 værelses
  5. København S
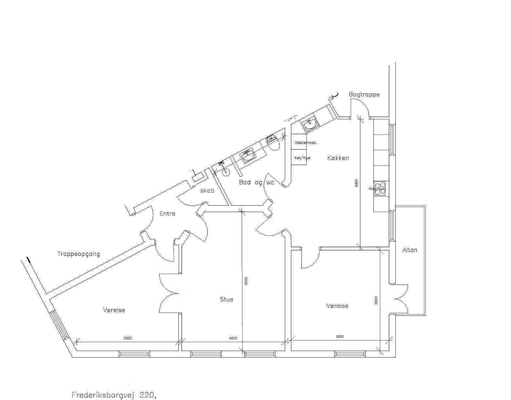
Plantegning
3 dage siden
3 værelses lejlighed på 95 m²
C.F. Møllers Allé, 2300 København, København S - Stuen
Månedlig leje
16.100
kr
16.100 kr.
Månedlig aconto
1.000 kr.
Indflytningspris
81.500 kr.

Ledig fra
31. marts 2026
Lejeperiode
Ubegrænset
Har du brug for et lån?

3 dage siden

3 værelses lejlighed på C.F. Møllers Allé i København S udlejes

3-værelses lejlighed i Emmahus, ØrestadVelkommen til Emmahus, moderne lejligheder med en perfekt kombination af byliv og grønne omgivelser.De 3-værelses lejligheder har et åbent og lyst køkken med hårde hvidevarer, vaskemaskine og nogen tørretumbler. Planløsningen giver god plads til både ophold og soveværelser og passer perfekt til par og små familier.Ejendommen Emmahus er en moderne ejendom med elevator, cykelparkering og hyggelige fællesområder. Her bor du komfortabelt i rolige omgivelser, men tæt på alt, hvad du har brug for.OmrådetBeliggende centralt i Ørestad er du tæt på metro, shopping i Fields, caféer og dagligvarebutikker. Der er grønne områder som Amager Fælled og Byparken i nærheden samt gode skoler og institutioner i området.Et lyst og funktionelt hjem med alt inden for rækkevidde.Billederne i denne annonce kan være fra lignende enheder og er kun til illustration. De repræsenterer stilen og kvaliteten af de tilgængelige enheder og kan variere i opbygning og detaljer.Møblerne vist på billederne medfølger ikke. De skal give et indtryk af, hvordan rummet kan indrettes, men er ikke inkluderet i lejemålet.

Detaljer om bolig

Boligtype
Lejlighed
Størrelse
95 m²
Værelser
3
Etage
Stuen
Møbleret
Nej
Delevenlig
Nej
Husdyr tilladt
Ja
Elevator
Ja
Seniorvenlig
Nej
Kun for studerende
Nej
Altan/terrasse
Nej
Parkering
Ja
Opvaskemaskine
Ja
Vaskemaskine
Ja
Ladestander
Nej
Tørretumbler
Ja
Energimærke
-

Detaljer om udlejning

Lejeperiode
Ubegrænset
Ledig fra
31. marts 2026
Månedlig leje
16.100 kr.
Aconto
1.000 kr.
Depositum
48.300 kr.
Forudbetalt husleje
16.100 kr.
Indflytningspris
81.500 kr.
Har du brug for et lån?
Oprettelsesdato
30.12.2025
Sagsnr.
5370920
BoligAgent
Din søgning:
København, København S, Lejligheder
Du modtager en e-mail, når der kommer nye boliger, som matcher din søgning - helt gratis!
Om udlejeren
Valideret af BoligPortal
Mere end 1000 annoncer
Sidst aktiv: I dag
Oprettet: 3 år siden
Månedlig leje
16.100
kr
16.100 kr.
Månedlig aconto
1.000 kr.
Indflytningspris
81.500 kr.

Ledig fra
31. marts 2026
Lejeperiode
Ubegrænset
Udlejer online i dag
BoligAgent
Din søgning:
København, København S, Lejligheder
Du modtager en e-mail, når der kommer nye boliger, som matcher din søgning - helt gratis!
Om udlejeren
Valideret af BoligPortal
Mere end 1000 annoncer
Sidst aktiv: I dag
Oprettet: 3 år siden
Udlejer online i dag
Månedlig leje
16.100
kr

Andre boliger i København

Fri kontakt
3 vær. lejlighed på 98 m²
Søborg, Gyngemose Parkvej
15.200 kr.22. december

Populære søgninger

Alle i Lejligheder
HENT APP
Google Play
BOLIGPORTALOm BoligPortalBlog PresseData- og privatlivspolitikCookiesHandelsbetingelserWhistleblowerordningKarriereBoligmanagerData Insights
HJÆLPUdlej værelseFlyttesynFremlejekontraktFremlej lejeboligKundeserviceVilkår
SOCIALE MEDIER
HENT APP
Google Play