Log ind
  1. Hjem
  2. Lejligheder
  3. København
  4. 4 værelses
  5. København S
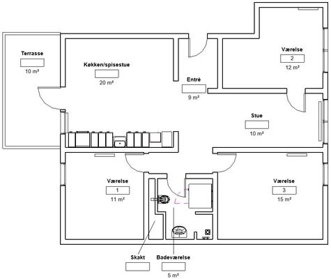
Plantegning
3 timer siden
4 værelses lejlighed på 104 m²
Else Alfelts Vej, 2300 København, København S - 4. sal
Månedlig leje
16.600
kr
16.600 kr.
Indflytningspris
99.600 kr.

Ledig fra
1. april 2026
Lejeperiode
Ubegrænset
Har du brug for et lån?

3 timer siden

4 værelses lejlighed på Else Alfelts Vej i København S udlejes

NB: Der udlejes ikke til bofællesskaber I Savannehusets lejeboliger får du Københavns enorme, fredede naturpark som baghave. Ejendommen ligger direkte ud til Kalvebod Fælleds grønne savannelandskab få hundrede meter fra den grønne udsigtsbakke Bumlebjerg, som forvandler sig til en skøn kælkebakke om vinteren. Savannehuset består af lejligheder på 2-4 værelser i en høj kvalitet med egetræsgulve, gulvvarme i alle rum og lyse køkkener fra Invita. Lejlighederne er rummelige, gennemlyste og har adgang til en privat altan. Enkelte lejligheder har ovenikøbet to altaner.Nyd det bedste fra byen og naturen. Ørestad indeholder det bedste fra to verdener. Den lettilgængelige metro og gode cykelstier gør det let at nyde det pulserende københavnerliv, mens bydelens nærområde også byder på caféer, indkøbsmuligheder, skoler, daginstitutioner, legepladser og shopping. Når du trænger til ro og fordybelse, kan du trække dig tilbage til din egen naturoase og nyde godt af Fælledens uforstyrrede vildmark.

Detaljer om bolig

Boligtype
Lejlighed
Størrelse
104 m²
Værelser
4
Etage
4.
Møbleret
Nej
Delevenlig
Nej
Husdyr tilladt
Nej
Elevator
Ja
Seniorvenlig
Ikke angivet
Kun for studerende
Ikke angivet
Altan/terrasse
Ja
Parkering
Ikke angivet
Opvaskemaskine
Ikke angivet
Vaskemaskine
Ikke angivet
Ladestander
Nej
Tørretumbler
Ikke angivet
Energimærke
-

Detaljer om udlejning

Lejeperiode
Ubegrænset
Ledig fra
1. april 2026
Månedlig leje
16.600 kr.
Depositum
49.800 kr.
Forudbetalt husleje
33.200 kr.
Indflytningspris
99.600 kr.
Har du brug for et lån?
Oprettelsesdato
14.1.2026
Sagsnr.
5450788
BoligAgent
Din søgning:
København, København S, Lejligheder
Du modtager en e-mail, når der kommer nye boliger, som matcher din søgning - helt gratis!
Om udlejeren
Valideret af BoligPortal
Mere end 700 annoncer
Sidst aktiv: I dag
Oprettet: 4 år siden
Månedlig leje
16.600
kr
16.600 kr.
Indflytningspris
99.600 kr.

Ledig fra
1. april 2026
Lejeperiode
Ubegrænset
Udlejer online i dag
BoligAgent
Din søgning:
København, København S, Lejligheder
Du modtager en e-mail, når der kommer nye boliger, som matcher din søgning - helt gratis!
Om udlejeren
Valideret af BoligPortal
Mere end 700 annoncer
Sidst aktiv: I dag
Oprettet: 4 år siden
Udlejer online i dag
Månedlig leje
16.600
kr

Andre boliger i København

Fri kontakt
4 vær. lejlighed på 104 m²
Holte, Vejlesøparken
15.900 kr.6 dage siden

Populære søgninger

Alle i Lejligheder
HENT APP
Google Play
BOLIGPORTALOm BoligPortalBlog PresseData- og privatlivspolitikCookiesHandelsbetingelserWhistleblowerordningKarriereBoligmanagerData Insights
HJÆLPUdlej værelseFlyttesynFremlejekontraktFremlej lejeboligKundeserviceVilkår
SOCIALE MEDIER
HENT APP
Google Play