Log ind
  1. Hjem
  2. Lejligheder
  3. Billund
  4. 3 værelses
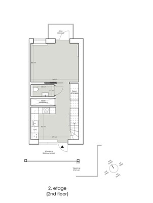
Plantegning
23. februar
3 værelses lejlighed på 98 m²
Hovedgaden, 7190 Billund - 2. sal
Månedlig leje
9.787
kr
9.787 kr.
Månedlig aconto
500 kr.
Indflytningspris
39.648 kr.

Ledig fra
1. juni 2026
Lejeperiode
Ubegrænset
Har du brug for et lån?

23. februar

3 værelses lejlighed centralt i Billund

Oasen Lejligheden er på i alt 97 kvadratmeter og har en perfekt beliggenhed med indkøbsmuligheder lige om hjørnet. Herudover er der restauranter, butikker og offentlig transport tæt på. Lejligheden er beliggende på Hovedgaden, og er på stueetagen. Lejlighedens hjerte er det store køkken-alrum og opholdsstuen. Der er 2 værelser og 1 badeværelse, så lejligheden er delevenlig. I køkkenet er inventaret fra HTH og der findes alt i hårde hvidevare undtagen vaskemaskine og tørretumbler som der er mulighed for at leje. Der er mulighed for at tilvælge parkering. Lyder dette som noget for dig så kontakt os

Detaljer om bolig

Boligtype
Lejlighed
Størrelse
98 m²
Værelser
3
Etage
2.
Møbleret
Nej
Delevenlig
Ja
Husdyr tilladt
Nej
Elevator
Ja
Seniorvenlig
Ja
Kun for studerende
Nej
Altan/terrasse
Ja
Parkering
Ja
Opvaskemaskine
Ja
Vaskemaskine
Ja
Ladestander
Ikke angivet
Tørretumbler
Ja
Energimærke

Detaljer om udlejning

Lejeperiode
Ubegrænset
Ledig fra
1. juni 2026
Månedlig leje
9.787 kr.
Aconto
500 kr.
Depositum
29.361 kr.
Forudbetalt husleje
0 kr.
Indflytningspris
39.648 kr.
Har du brug for et lån?
Oprettelsesdato
23.2.2026
Sagsnr.
5601943
BoligAgent
Din søgning:
Billund, Lejligheder
Du modtager en e-mail, når der kommer nye boliger, som matcher din søgning - helt gratis!
Om udlejeren
Valideret af BoligPortal
12 annoncer
Sidst aktiv: 2 dage siden
Oprettet: 8 måneder siden
Månedlig leje
9.787
kr
9.787 kr.
Månedlig aconto
500 kr.
Indflytningspris
39.648 kr.

Ledig fra
1. juni 2026
Lejeperiode
Ubegrænset
BoligAgent
Din søgning:
Billund, Lejligheder
Du modtager en e-mail, når der kommer nye boliger, som matcher din søgning - helt gratis!
Om udlejeren
Valideret af BoligPortal
12 annoncer
Sidst aktiv: 2 dage siden
Oprettet: 8 måneder siden
Månedlig leje
9.787
kr

Andre boliger i Billund

3 vær. rækkehus på 91 m²
Billund, Æblerosen
9.840 kr.I går

Populære søgninger

Alle i Lejligheder
HENT APP
Google Play
BOLIGPORTALOm BoligPortalBlog PresseData- og privatlivspolitikCookiesHandelsbetingelserWhistleblowerordningKarriereBoligmanagerData Insights
HJÆLPUdlej værelseFlyttesynFremlejekontraktFremlej lejeboligKundeserviceVilkår
SOCIALE MEDIER
HENT APP
Google Play

English
Indholdet er beskyttet i henhold til ophavsretsloven. Regelmæssig, systematisk eller kontinuerlig indsamling, opbevaring og enhver anden form for kompilering af data er ikke tilladt uden udtrykkelig skriftlig tilladelse fra BoligPortal.
© 2001–2026 BoligPortal