Log ind
  1. Hjem
  2. Huse
  3. Randers
  4. 3 værelses
  5. Randers Sø
Lejemålet er blevet markeret som reserveret af udlejeren. Det bliver måske ledigt igen, hvis den valgte lejer springer fra. Ellers har vi stadig mange lignende lejemål til dig -
Se alle lignende lejemål
2. oktober
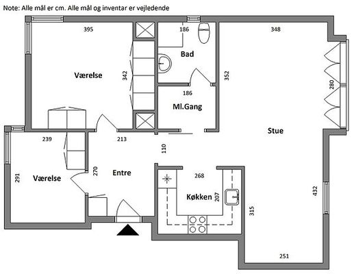
3 værelses hus på 103 m²
Ingrid Marie Vej, 8960 Randers, Randers SØ
Månedlig leje
9.005
kr
9.005 kr.
Indflytningspris
50.480 kr.

Ledig fra
Snarest muligt
Lejeperiode
Ubegrænset
Har du brug for et lån?

2. oktober

3 værelses hus på Ingrid Marie Vej i Randers Sø udlejes

VELKOMMEN TIL GENBRUGET, MUNKDRUP \- en innovativ vision om at sætte fokus på vores biologiske og kulturelle arv. Boligerne \- Lækre lavenergiboliger i både et og to plan. Boligerne er udført efter bygningsklasse 2020, som er en lavenergiklasse med skærpede krav til energibesparelser. Herved er der i byggeriet særligt fokus på lavt energiforbrug. Gulvene er udført med træparket i opholdsrum og klinker i bad og forgang. Der er gulvvarme i alle rum. Køkkenerne er udført i hvide elementer med laminatbordplade, emhætte, kogeø med induktion og indbygningsovn med varmluft og pyrolyse, der er installeret køl/frys i udvalgte boliger. Der er forberedt plads til opvaskemaskine, vaskemaskine og tørretumbler. Der er udgang til boligens terrasse fra stuen. Hver bolig har egen indkørsel med parkeringsplads samt et lille udhus på 3,3 m2, hvor der er plads til f.eks. cykler og barnevogn. er i to plan. _Forbrug: Vand, varme og el opkræves direkte af forsyningsselskabet._ \- Bæredygtighed og fællesskab. brug i tæt samarbejde med Randers Regnskov. I projektet er der indgået aftale med Randers Regnskov om, at der skal plantes gamle æblesorter på fællesarealerne. Der vil på sigt være mulighed for at iværksætte andre gode tiltag, som beboerne kan være fælles om. da fælleshuset er designet og udformet efter DNA’et på et Ingrid Marie æble. Der er etableret ekstra parkeringspladser ved indkørslen til Ingrid Maries Vej foran fælleshuset. Nærområde \- Tæt på det meste. GENbruget er beliggende i Munkdrup ved Randers SØ. Stedets beliggenhed byder på alle kvaliteter af både by og natur. Midtbyen nås på kort tid. Skoler, institutioner, indkøb og offentlig transport findes lige i nærheden. Motorvejen ligger inden for få minutters kørsel, og der er ca. 11 min. til Randers C, 32. min til Aarhus C, 49 min. til Grenå. Oprindeligt udlejeningsmateriale fra 2020 \-

Detaljer om bolig

Boligtype
Hus
Størrelse
103 m²
Værelser
3
Etage
-
Møbleret
Nej
Delevenlig
Ja
Husdyr tilladt
Ja
Elevator
Ikke angivet
Seniorvenlig
Ikke angivet
Kun for studerende
Nej
Altan/terrasse
Ja
Parkering
Ja
Opvaskemaskine
Ikke angivet
Vaskemaskine
Ikke angivet
Ladestander
Nej
Tørretumbler
Ikke angivet
Energimærke
-

Detaljer om udlejning

Lejeperiode
Ubegrænset
Ledig fra
Snarest muligt
Månedlig leje
9.005 kr.
Indskud
41.475 kr.
Indflytningspris
50.480 kr.
Har du brug for et lån?
Oprettelsesdato
2.10.2025
Sagsnr.
5326527
BoligAgent
Din søgning:
Randers, Randers Sø, Huse
Du modtager en e-mail, når der kommer nye boliger, som matcher din søgning - helt gratis!
Om udlejeren
Valideret af BoligPortal
Mere end 1000 annoncer
Sidst aktiv: 3 dage siden
Oprettet: 11 år siden
Månedlig leje
9.005
kr
9.005 kr.
Indflytningspris
50.480 kr.

Ledig fra
Snarest muligt
Lejeperiode
Ubegrænset
BoligAgent
Din søgning:
Randers, Randers Sø, Huse
Du modtager en e-mail, når der kommer nye boliger, som matcher din søgning - helt gratis!
Om udlejeren
Valideret af BoligPortal
Mere end 1000 annoncer
Sidst aktiv: 3 dage siden
Oprettet: 11 år siden
Månedlig leje
9.005
kr

Andre boliger i Randers

Fri kontakt
4 vær. lejlighed på 94 m²
Randers NØ, Banesporet
8.950 kr.3 dage siden

Populære søgninger

Alle i Huse
HENT APP
Google Play
BOLIGPORTALOm BoligPortalBlog PresseData- og privatlivspolitikCookiesHandelsbetingelserWhistleblowerordningJobsBoligmanagerData Insights
HJÆLPUdlej værelseFlyttesynFremlejekontraktFremlej lejeboligKundeserviceVilkår
SOCIALE MEDIER
HENT APP
Google Play