Log in
  1. Home
  2. Apartments
  3. Sorø
  4. 4 rooms
Floor plan
4 hours ago
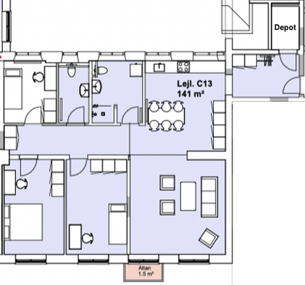
4 room apartment of 119 m²
Dalsgaard Allé, 4180 Sorø
Monthly net rent
14.250
kr
14.250 kr.
Utilities
1.000 kr.
Move-in price
72.250 kr.

Available from
1 March 2026
Rental period
Unlimited
Do you need a loan?

4 hours ago

Super lækkert lejlighed i den total renoveret Postgården med ca. 8 m2 have

Sorø Postgården - Blanding af gammeldags charme og moderne komfort Sorø ligger i de skønne midtsjællandske landskaber omgivet af skove, marker og utallige større og mindre søer. Landskaberne kan næppe blive mere varierede. Denne lejlighed er på stuen-1. sal Bebyggelsen er placeret i det centrale område af byen. Omdrejningspunktet for det samlede bygningskompleks er Postgården beliggende i Storgade 25 – en historik bygning der i århundreder har fungeret som kro og hotel. Denne bygning er blevet renoveret og opdateret til dens oprindelig form med boliger og erhverv til glæde og gavn for livet i byens centrum. Intentionen har været at skabe en tidssvarende ejendom gennem en ombygning med respekt for de åbenlyse værdier, samt sikre den oprindelige byggeskik jævnfør ønsket i Lokalplanen. Køkken: Køkkenelementer udføres som HTH model Sense med rammeudfræsing så det ligner gammelt køkken, Lakeret hvid mat. Forsynes med HTH greb, softcrom og bordplade i 30 mm. massiv, olieret egetræ. Køkken forsynes med HTH greb i messing. Badeværelse: Badeværelsesmøbel er Cosani Basicline Møbelsæt og bordplade er helstøbt med bundventil i messing Damixa. Armaturer udføres som Damixa silhouel i messing. Der er gulvvarme i alle rum. Baderum og enkelte gange udføres med klinker på gulv. I øvrige rum lægges egetræsgulve. Alle billeder, tegninger og skitser er illustrationer og der kan være afvigelser fra billederne, tegningerne og skitserne, til det faktiske. Det gælder både udleveret brochure og på hjemmesider mv. Husdyr: Muligvis tilladt - spørg udlejer

About property

Property type
Apartment
Size
119 m²
Rooms
4
Floor
-
Furnished
No
Shareable
No
Pets allowed
No
Elevator
No
Senior friendly
No
Students only
No
Balcony
Yes
Parking
Yes
Dishwasher
Yes
Washing machine
Yes
Electric charging station
Not specified
Dryer
Yes
Energy rating

About rental

Rental period
Unlimited
Available from
1 March 2026
Monthly net rent
14.250 kr.
Utilities
1.000 kr.
Deposit
42.750 kr.
Prepaid rent
14.250 kr.
Move-in price
72.250 kr.
Do you need a loan?
Creation Date
13/02/2026
Listing-id
5307717
Search Agent
Your search:
Sorø, Apartments
Send me alerts based on these search criteria - for free!
Landlord
Approved by BoligPortal
76 advertisements
Last active: Today
Profile created: 5 years ago
Monthly net rent
14.250
kr
14.250 kr.
Utilities
1.000 kr.
Move-in price
72.250 kr.

Available from
1 March 2026
Rental period
Unlimited
Landlord online today
Search Agent
Your search:
Sorø, Apartments
Send me alerts based on these search criteria - for free!
Landlord
Approved by BoligPortal
76 advertisements
Last active: Today
Profile created: 5 years ago
Landlord online today
Monthly net rent
14.250
kr

Other results in Sorø

4 rm. townhouse of 103 m²
Sorø, Mosevænget
11.900 kr.2 February

Popular search terms

All in Apartments
GET APP
Google Play
BOLIGPORTALAbout usBlog PressData and Privacy PolicyCookie policyPayment policyWhistleblower programCareerBoligmanagerData Insights
SUPPORTRent out a roomMoving inspectionSublease contractSublet a rental propertyCustomer supportTerms and conditions
SOCIAL MEDIA
GET APP
Google Play

Dansk